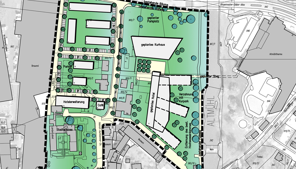
Treuchtlingen

AG: Stadt Treuchtlingen

Satzung: 2007 / 2008

Fläche: ca. 8 ha

Kurbereich nördlich des Stadtschlosses

Kurbereich nördlich des Stadtschlosses Nr. 39 / Östlich der Altmühltherme Nr. 40

Leistung: städtebaulicher Entwurf, Bebauungsplan LP 1-5 Umweltbericht