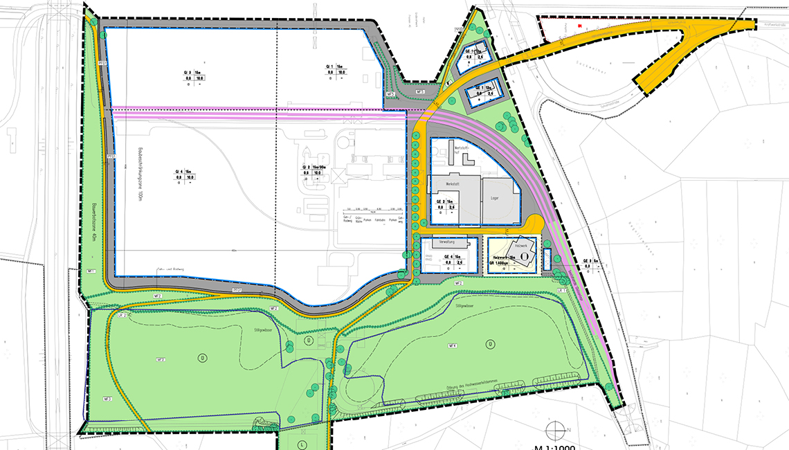
Erlangen

AG: E.on München / Stadt Erlangen

Satzung: 2007

Fläche: ca. 35 ha

Gewerbe- und Industriepark, Frauenaurach

Leistung: Bebauungsplan LP 1-5
Umweltbericht
Umsetzung der Ausgleichsmaßnahmen