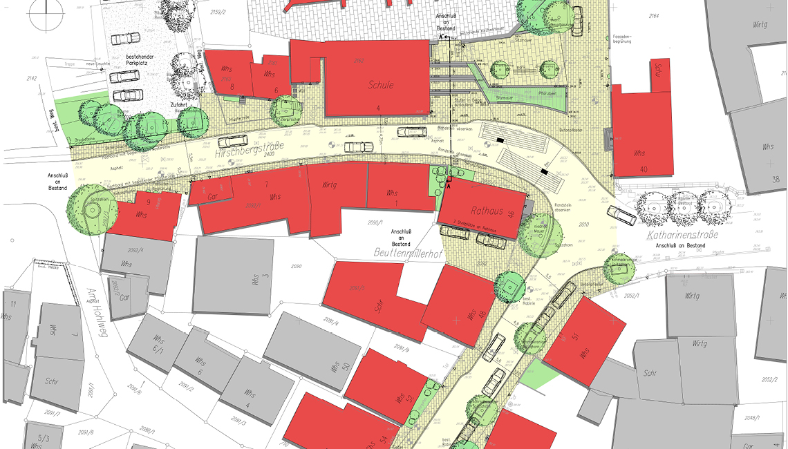
Egolsheim

AG: Stadt Ludwigsburg

Planung: 2004

Fertigstellung: 2006

Neugestaltung Bereich Katharinenkirche

Bausumme: ca. 0,3 Mio Euro

Leistung: Freianlage LP 1-6