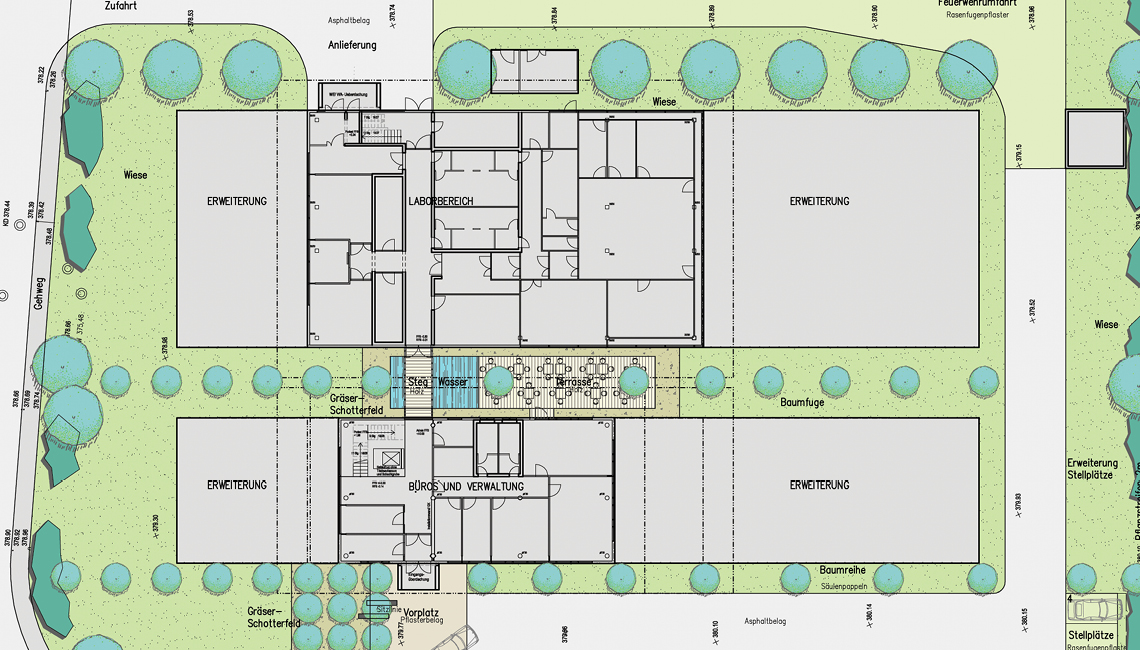
Reutlingen

AG: TETEC

Planung: 2007

Fertigstellung: 2009

Neubau Produktions- und Verwaltungsgebäude

Leistung: Freianlage LP 1-8

Architektur: Koppenhöfer + Partner Stuttgart