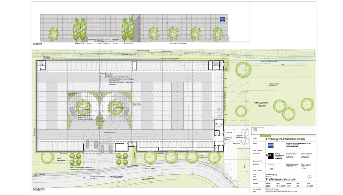
Oberkochen

AG: Carl Zeiss AG

Planung: ab 2012

Fertigstellung: 2013

Werkserweiterung Carl Zeiss AG in Oberkochen

Bausumme: ca. 2,5 Mio Euro

Leistung: LP 5-9

Architektur: Nething Architekten Ulm